Для правильного функционирования сушильная
камера должна загружаться полностью, число пакетов должно быть
заранее предусмотрено.
В любом случае не следует перегружать коридоры циркулирования воздуха,
иначе циркуляция воздуха будет нарушена и сушка будет проходить
неравномерно вверху и внизу.
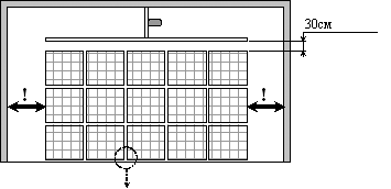
Пространство между верхней частью штабеля древесины и ложным
потолком не должно превышать 30см. В противном случае, необходимо
установить экран (с помощью досок или панелей) между потолком и
верхним слоем древесиныe.
Используйте опоры (межпакетные прокладки) для пакетов, размером,
соответствующим пластам досок разных пакетов. В противном случае,
это приведет к плохой циркуляции воздуха и неравномерному процессу
сушки.
Порядок загрузки пакетов в сушильную камеру,
число, ширина межрядных прокладок, расстояние между межрядными прокладками,
а также размеры межпакетных прокладок определяются исходя из существующих
правил и рекомендаций у потребителя.


|